დაგვიკავშირდით
3D
2D
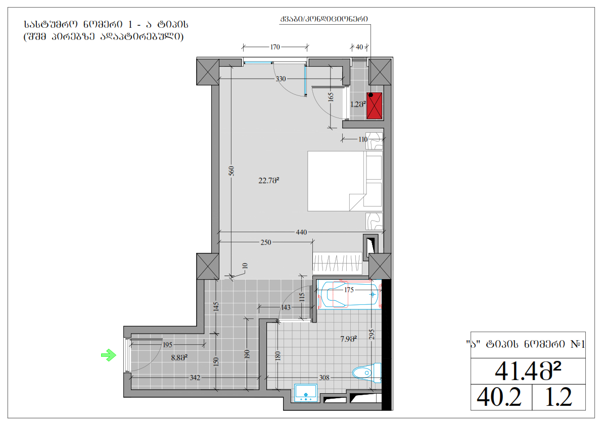
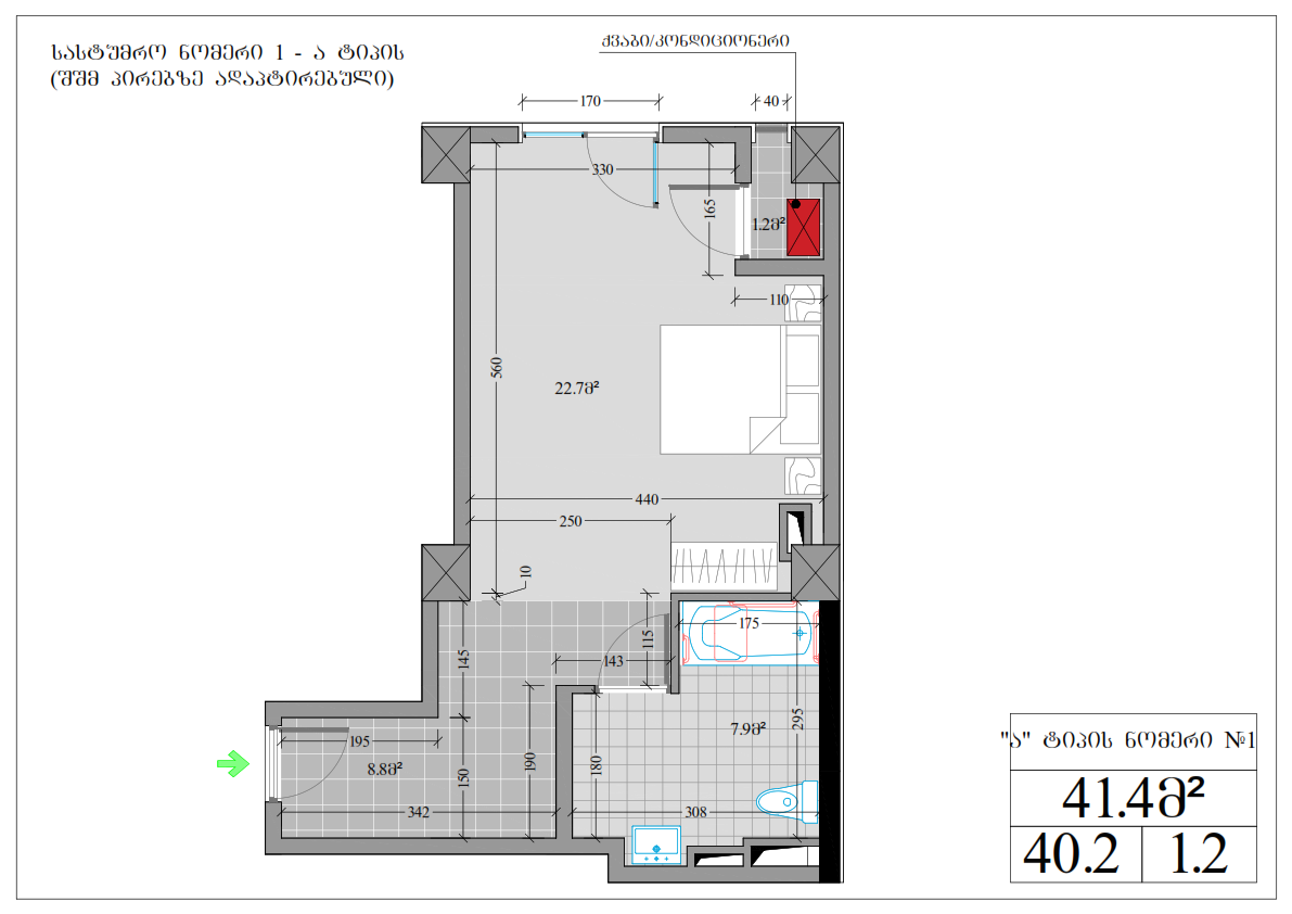
სართული 1 / ბინა 1
54.1 კვ.მ 1 კვ.მ / $
  • საცხოვრებელი ფართი : 50.7 კვ.მ
  • საზაფხულო ფართი : 3.4 კვ.მ
  • სველი წერტილი : 1.3 კვ.მ
  • სველი წერტილი 2 : 7.4 კვ.მ
  • აივანი : 3.4 კვ.მ
0
ჩამოტვირთეთ
  • $





შეუკვეთე ზარი


2.7102
0